Porzione di bifamiliare in vendita

Salzano, Via Filippo Turati
€ 239.000
6 locali 6 locali
260 Mq 260 Mq
3 bagni 3 bagni

Porzione di bifamiliare in vendita

Salzano, Via Filippo Turati

Descrizione annuncio

SALZANO – PORZIONE DI BIFAMILIARE CON SCOPERTO PRIVATO, IDEALE PER DUE NUCLEI FAMILIARI

L’Agenzia Immobiliare Tecnorete di Martellago propone in vendita una porzione di bifamiliare situata in posizione strategica, comoda al centro di Salzano e ai principali servizi.

Disposta su due livelli con ingressi autonomi, la proprietà è ideale per due nuclei familiari o per chi desidera vivere in un’abitazione con spazi distinti e ben organizzati.

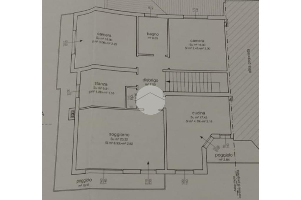
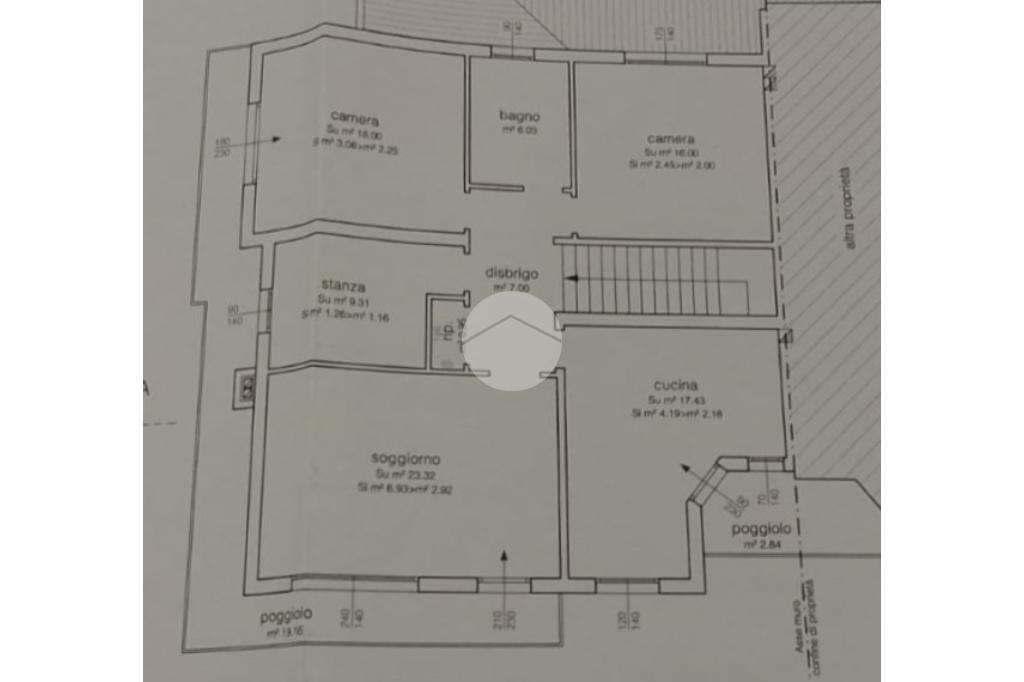
Al piano terra troviamo una zona giorno composta da soggiorno e cucina separata. Un pratico disimpegno conduce alla camera matrimoniale di 18 mq, a uno studiolo e al bagno finestrato con doccia. Il piano è stato parzialmente ristrutturato recentemente, con interventi sugli impianti e la realizzazione del cappotto interno, garantendo maggiore comfort abitativo ed efficienza energetica.

Il piano primo, accessibile tramite ingresso indipendente al piano terra dove è presente una comoda lavanderia, si apre su ambienti accoglienti e ben distribuiti. La zona giorno è composta da cucina abitabile e soggiorno separato, entrambi serviti da poggiolo, ideali per momenti di relax e convivialità.
Un corridoio centrale conduce alla zona notte, composta da tre camere da letto: due matrimoniali e una singola, perfetta anche come studio, oltre a un bagno finestrato.


Completano la proprietà un box auto doppio, due posti auto coperti ed uno scoperto privato di circa 250 mq, ideale per chi ama gli spazi esterni e desidera privacy.

Per maggiori informazioni chiamaci al numero 041.8233062 oppure passa a trovarci in agenzia, ci trovi a Martellago, Piazza IV Novembre 71.

Mostra tutto

Nelle vicinanze

Trasporto pubblico Trasporto pubblico
Salzano-Robegano
Salzano-Robegano
2,3 Km
ACTV
ACTV
780 m
Trasporto pubblico
870 m
Scuole Scuole
Scuole
660 m
Scuola Elementare San Giovanni Bosco
900 m
Istituto comprensivo Dante Alighieri
1,2 Km
Istituto Don Giulio Costantino
1,8 Km
Scuola elementare “Francesco Petrarca”
2,1 Km
Farmacia Farmacia
Farmacia
800 m
Farmacia Comunale
940 m
Sansoni
2,4 Km
Viviani
2,4 Km
Farmacia Volpato
2,6 Km
Ospedali Ospedali
Ospedali
450 m
Ospedale Civile di Mirano
1,8 Km
Supermercati Supermercati
Supermercati
1,0 Km
Coop
1,4 Km
Prix
2,6 Km
Lidl
2,9 Km
King Mercatone
2,9 Km
Negozi Negozi
L'albero del Pane
2,3 Km
NKD
2,7 Km
Le Gustose
2,7 Km
Panificio Caravello Adriano
2,9 Km
Bar Bar
Bar
730 m
Pasticceria Elisa
890 m
Bar Alpino
2,3 Km
Al Campanile
2,4 Km
L'Ostricaro
2,4 Km
Ristoranti Ristoranti
Pizzeria all'Albera
550 m
Boraccia
1,4 Km
Tiro al piattello
1,7 Km
Ai Molini
1,9 Km
C'era una volta
2,2 Km
Mostra tutto

Caratteristiche

Rif.:
61159540
Piano:
Su più livelli di 2
Totale piani:
2
Box:
1
Posti auto:
2
Terrazzi:
2
Mostra tutto
Prezzo Prezzo
€ 239.000
Rata mutuo Rata mutuo
€ 1.116 / mese
Spese annue Spese annue
€ 0
Proponi il tuo prezzoProponi il tuo prezzo
Immobile valutato con T·Valuta

Classe Energetica

Questo immobile è esente da classe energetica
Anno di costruzione:
1970
Riscaldamento:
Autonomo
Tipo impianto:
A radiatori
Tipo alimentazione:
Metano

Ti interessa visionare l'immobile?

Fissa un appuntamento  Fissa un appuntamento

Richiedi informazioni

Clicca su Leggi per aprire l'informativa
* Questi campi sono obbligatori

Calcola il tuo mutuo

Semplice e senza impegno
Anticipo

( % )
Mutuo

( % )

pochi semplici passi

inserisci i tuoi dati
Questionario completato
Grazie per aver richiesto un appuntamento senza impegno con un nostro Consulente del Credito e Assicurativo.

Hai inserito correttamente tutti i dati necessari e a breve riceverai una e-mail con un link da convalidare per inviare i tuoi dati.
Affiliato
Immobiliare Martellago Sas
P.zza IV Novembre, 71 30030 Martellago (VE)

Il nostro staff


  • Roberto Albano
    Affiliato

  • Sara Pistolato
    Collaboratrice

  • Kevin Pezzato
    Collaboratore

  • Riccardo Socci
    Affiliato
P.zza IV Novembre, 71 30030 Martellago (VE)
Zona: Martellago
Mostra su mappa
Orari: Lunedì - Venerdì 09 -12:30, 14:30 -19:30 Sabato 09–12:30 Domenica Chiuso
Affiliato
Immobiliare Martellago Sas
P.zza IV Novembre, 71 30030 Martellago (VE)

2026 Tecnocasa Franchising S.p.A. - P. IVA 08365160152 - Via Monte Bianco 60/A 20089 Rozzano (MI). Ogni agenzia ha un proprio titolare ed è autonoma. Privacy policy | Policy utilizzo | Cookie policy